1-к квартира с ремонтом

5 750 000

Коммунистическая ул., 127, Калининград

Квартира, продажа, номер объекта в нашей базе: 135102082

Описание

1-комнатная квартира с ремонтом в ЖК «Апельсин»

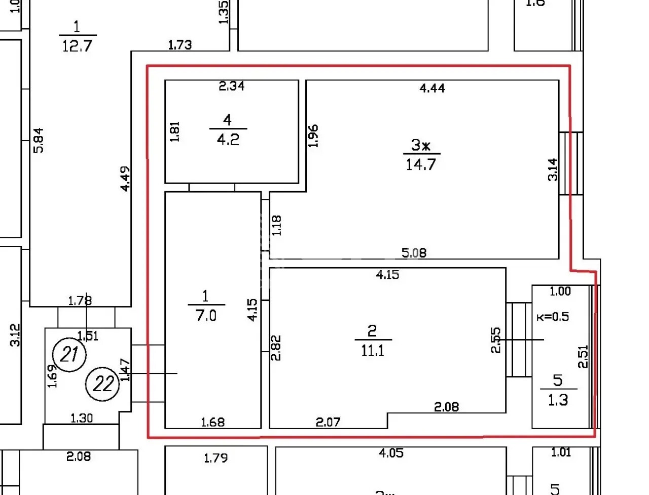
39,6 м? с лоджией, удобная планировка: кухня 11 м?, комната 15 м?. Квартира светлая, с аккуратным ремонтом — можно заезжать без лишних вложений.

Тёплые полы в кухне, коридоре и санузле, автономное отопление (двухконтурный газовый котёл — сами регулируете температуру и платежи). Есть застеклённая лоджия с выходом из кухни.

Остаётся кухонный гарнитур с техникой, шторы и тюль — приятный бонус.

Дом кирпичный, тёплый, с ухоженной территорией, парковками и площадками. Рядом озеро, магазины, пункты выдачи и остановка транспорта.

Квартира без обременений, один собственник, готова к сделке.
Арт. 135102082

Характеристики


Площадь квартиры: 39.6 кв.м.
Количество комнат: 1
Жилая площадь: 15 кв.м.
Площадь кухни: 11 кв.м.
Этаж квартиры: 5
Этажность дома: 8
Тип санузла: совмещенный
Наличие мебели на кухне:
Ипотека:

Царькова Анастасия

+79673516999

Похожие объекты

7 990 000

Квартира продажа
Лукашова пер., 2

Калининград
6 900 000

Квартира с ремонтом и мебелью
Коммунистическая ул., 127, к 2

Калининград
6 700 000

Квартира продажа
Жиленкова ул., 7

Калининград