Квартира продажа
6 700 000
Жиленкова ул., 7, Калининград
Квартира, продажа, номер объекта в нашей базе: 135100704
Описание
Продается 2-х комнатная квартира в центральном районе(Чкаловск)
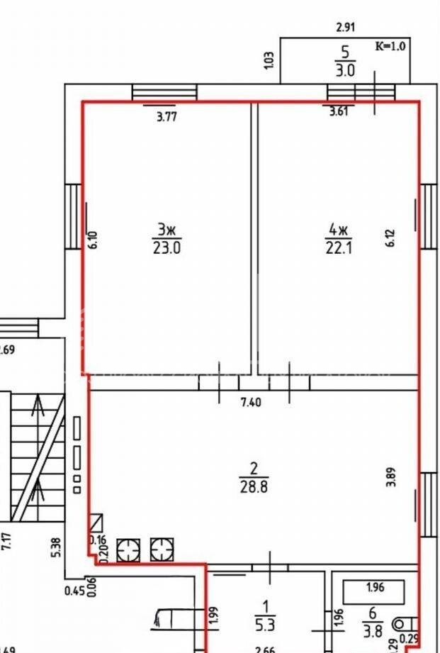
Общая площадь 83м?,квартира находится на 1/3 этаже в кирпичном доме 2023 года постройки.
Идеально подходит семьям с детьми благодаря близкому расположению школ, детских садов, поликлиник и супермаркетов.
Выгодное расположение: всего в паре шагов находятся остановки общественного транспорта, в 10 минут ходьбы находится станция электрички, на которой можно добраться до города за 10 минут или же отправиться на побережье балтийского моря.
Низкие коммунальные платежи, чистый подъезд и благоустроенный двор.
- Что внутри?
- - Общая площадь: 83м?
- - Две просторные комнаты общей площадью 45.1м?
- -Большая кухня-гостиная: 28.8м?
- -Санузел 3.8м?
- - Наличие балкона 3 м?
- -Окна в квартире выходят на 2 стороны дома, во двор и на улицу
- - В квартире выполнены частично ремонтные работы , так что вы сможете сразу заселяться, и потихоньку делать ремонт под себя!
- -АВТОНОМНОЕ ОТОПЛЕНИЕ
Безопасность сделки гарантирована
- Компания СПР является членом Российской гильдии риэлторов
- Деятельность сертифицирована и юридически защищена
- Партнеры ведущих банков России
- Мы оказываем полное юридическое сопровождение сделок и помощь в оформлении ипотечного кредита.
Хотите жить комфортно и безопасно? Выбирайте квартиру своей мечты прямо сейчас! Звоните нам и убедитесь сами в преимуществах покупки недвижимости в центральном районе Калининграда. Сделайте первый шаг навстречу вашему новому дому уже сегодня!
Арт. 135100704
Характеристики
Площадь квартиры: 83 кв.м.
Количество комнат: 2
Жилая площадь: 45.1 кв.м.
Площадь кухни: 28.8 кв.м.
Этаж квартиры: 3
Этажность дома: 3
Тип санузла: совмещенный
Ипотека:
Год сдачи: 2023