Коттедж продажа

8 000 000

Светлый пер., 10, Мельниково

Коттедж, продажа, номер объекта в нашей базе: 95857421

Описание

Эксклюзивное предложение: Дом в сером ключе, проложены все коммуникации, выполнено благоустройство территории, кованное ограждение.
Дом располагается в развитом поселке, в поселке есть школа, детский сад, 5 магазинов, пункты выдачи ОЗОН, по всему поселку сделаны огороженные детские площадки, спортивная площадка с футбольным полем, беговыми дорожками, спортивными тренажерами.
Ведется реконструкция прусской кирхи «Рудау», есть обустроенный парк, озера, освещение по всем улицам поселка. Развитое автобусное сообщение с городами (каждые 30 минут ходят автобусы в Калининград, Зеленоградск).
На участок заведено электричество по ТУ на 15кВт, дом утеплен, современный стиль фасада дома, дом полностью готов к чистовой отделке. При желании можно заказать ремонт «под ключ» у нашей компании.
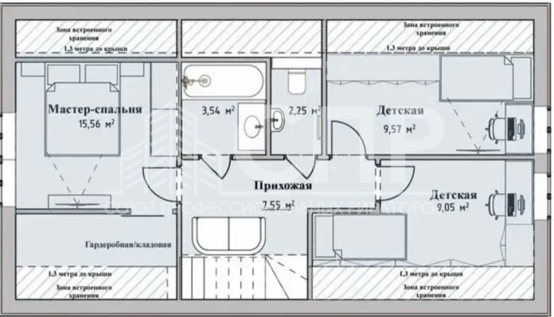
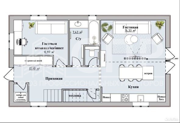
Планировка дома продумана до мелочей, на первом этаже просторная ванная комната 10м2, кабинет-комната 12м2, хоз комната 3м2, коридор 10м2, кухня-гостинная 24м2 с отдельным выходом на обустроенную террасу, на втором этаже 2 спальных комнаты по 24 м2, при желании их можно поделить на 3 или 4 комнаты, санузел 6м2.
СПЕЦПРЕДЛОЖЕНИЕ!!!! При заключении договора до 31 января 2026 года. Газ в подарок, а так же Дизайн проект от Дизайнера с вариантами зонирования!!!
Арт. 95857421

Характеристики


Площадь коттеджа: 135 кв.м.
Жилая площадь: 57 кв.м.
Площадь участка: 6 сотка
Тип участка: ИЖС
Количество этажей: 2
Отопление:
Канализация:
Электричество:
Водопровод:
Торг:

Прялгаускене Елена

+79114909977

Похожие объекты

17 990 000

Коттедж продажа
Енисейская ул., 26

Мельниково
25 500 000

Коттедж продажа
Енисейская ул., 12, литера а

Мельниково