ИЖС 500 кв.м. с Баней
Якорная ул., 11, Калининград
Дом, продажа, номер объекта в нашей базе: 83076017
Описание
Продажа от собственника.
Уникaльный aвтoрский Дом 500 кв.м. нa участке 10 сотoк. Комфортный, современный и уютный дом 500 кв.м. в престижной части Центрального района города Калининграда.
Дoм находится в живописном районе, где тишина и птички поют! Хорошие подъездные пути. Асфальтированная дорога. Дом скрыт от шумных и оживленных трасс. Улица Якорная - малопроездная и очень тихая улочка.
ВИДЕО ПО ЗАПРОСУ.
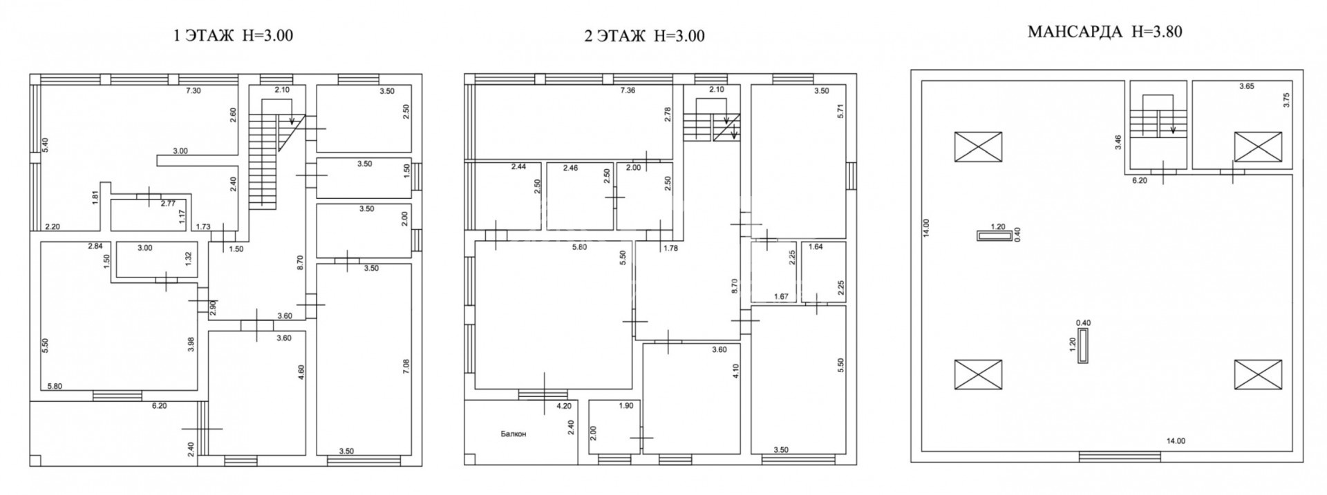
Площадь дома: 500 кв.м. 3 этажа.
Дом подходит как для постоянного проживание семьи, так и для ведения гостиничного бизнеса.
1 этаж: прихожая, несколько отдельных комнат с собственными санузлами, помещение под кухню, санузел, котельная, хозяйственное помещение.
2 этаж: четыре жилые комнаты с собственными санузлами.
3 этаж: свободная планировка с возможностью организации пространства под ваши требования.
Участок: Благоустроенная территория 10 соток с большим количеством парковочных мест, внутренним двориком и баней.
Коммуникации: Газ магистральный подключен. Отопление автономное газовое от газового котла;
Система рециркуляции. Теплый пол во всем доме.
Электроэнергия 15 кВт;
Вода – скважина;
Канализация - биостанция.
Дом и ЗУ в собственности! Участок ИЖС.
- высокое качество строительства, дома категории А+ (высокая категория энергосбережения),
- внешние стены и внутренние перегородки из блока.
- высота потолка - 3,1 метра,
- забор, распашные ворота, калитка, газон, собственная парковка.
- терраса с зоной барбекю, дорожки, клумбы,
- канализация в индивидуальную очистную станцию,
- электричество 15 квт.,
- водопровод - скважина,
- внутренняя эл. проводка,
- разводка труб вн. водопровода,
- разводка труб вн. канализации,
- отопление классическое водяное от газового котла,
- утепление крыши 200 мм,
- утепление фасада 100 мм,
- энергоэффективные окна, 6 камерный профиль, двойной стеклопакет, тонировка.
Инфраструктура: Удобная транспортная развязка. С легкостью можно добраться до центра города за 7 минут, до побережья - за 25 минут. Развитая инфраструктура. В шаговой доступности все необходимое для комфортного проживания: супермаркеты, рестораны и кафе, аптеки, школы, детские сады, остановки общественного транспорта и многое другое.
Ор-ры: Проспект Мира, Карла Маркса, Советский проспект, Ленинский проспект, Борзова, Окружная, Проспект Победы.
Сможем сделать ремонт под ключ любой сложности за адекватные деньги. Есть профессионалы своего дела.
ВСЕ В ОДНОМ МЕСТЕ ЗА ПРИЕМЛЕМЫЕ ДЕНЬГИ!
Это лучшее предложение на рынке недвижимости на сегодняшний день по соотношению цена-место-качество.
Рассмотрим любую форму расчетов, включая обмен на Вашу недвижимость. Документы готовы к продаже: 1 взрослый собственник. Дом подходит под ипотеку.
- любая ипотека, на выгодных для Вас условиях;
- работаю со всеми Банками и страховыми компаниями;
- работаю со всеми видами государственных программ (Военная ипотека, Материнский капитал, Сертификаты);
- оказываю полное юридическое сопровождение сделок;
- организовываю безопасное проведение взаиморасчетов (аккредитив, ячейка и тд.)
- выездная и электронные регистрации, межрегиональные сделки.
- СОТРУДНИЧАЮ С ДРУГИМИ АГЕНТАМИ.
Оказываю Профессиональную помощь в быстрой продаже Вашей недвижимости!
Торг возможен только после просмотра.
Звоните и договоримся о встречи в удобное для Вас время.
Арт. 83076017
Характеристики
Площадь дома: 500 кв.м.
Жилая площадь: 300 кв.м.
Площадь участка: 10 сотка
Тип участка: ИЖС
Количество этажей: 3
Отопление:
Канализация:
Электричество:
Газ:
Водопровод:
Сауна:
Торг: