Квартира продажа

6 350 000

Генерала Толстикова ул., 8, к 1, Калининград

Квартира, продажа, номер объекта в нашей базе: 134636298

Описание

Спешите ! Лучшее предложение! 100 000/м.кв.

Предлагаем к продаже двухкомнатную квартиру в ЖЛ Лето, ул. Генерала Толстикова ,на берегу Летнего озера!

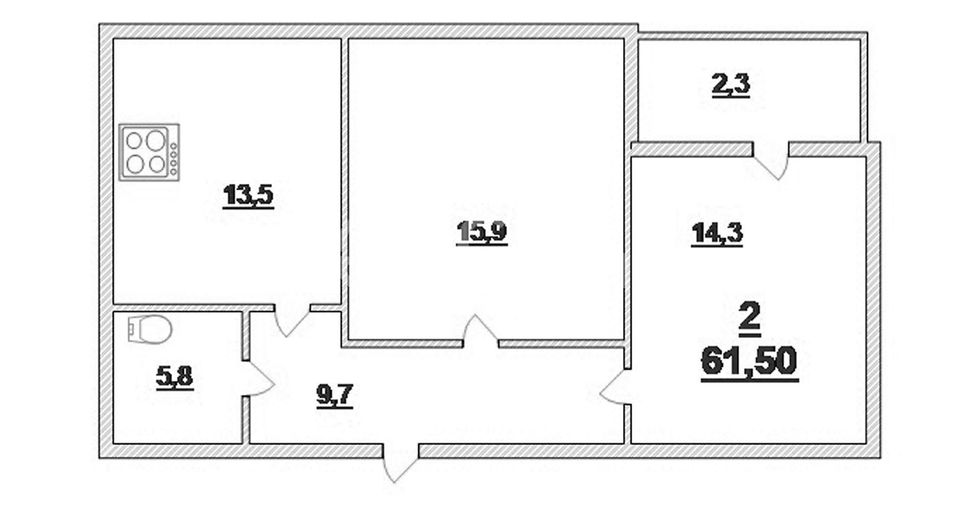
Площадь квартиры-61кв.м. , с балконом-65кв.м. Расположена на 1/16 дома .Все окна выходят на парк! Дом сдан!
Автономное газовое отопление, высококачественная предчистовая отделка: на стенах гипсовая штукатурка (стены подготовлены к покраске или поклейке обоев), ровная стяжка пола, входная сейф-дверь.
Территория комплекса благоустроена, под всем комплексом имеется подземный паркинг (возможна аренда парковочного места), гостевая парковка.
Летнее озеро- одно из лучших мест в данном микрорайоне :организованы детские и спортивные площадки, места отдыха, пешеходные дорожки, места для выгула собак.
Вся инфраструктура в шаговой доступности: Виктория , Спар , остановки общественного транспорта, школа, детский сад, поликлиника!

Если вас заинтересовало данное предложение, звоните!
Арт. 134636298

Характеристики


Площадь квартиры: 61.5 кв.м.
Количество комнат: 2
Жилая площадь: 30.5 кв.м.
Площадь кухни: 15.9 кв.м.
Этаж квартиры: 1
Этажность дома: 9
Тип санузла: совмещенный
Ипотека:
Год сдачи: 2022

Седакова Инна

+79211080420

Похожие объекты

4 700 000

Квартира продажа
Минусинская ул., 24

Калининград
16 700 000

Квартира продажа
Пушкина ул., 4

Калининград
55 000 000

Квартира продажа
Энгельса ул., 18

Калининград