Дом в эко-поселке

9 680 000

Южная ул., Холмогоровка

Дом, продажа, номер объекта в нашей базе: 129271773

Описание

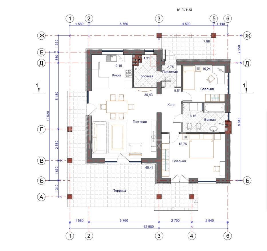
Продается одноэтажный дом площадью 96,8 кв.м. на участке 547 кв.м. всего в 6 км от Калининграда в уникальном экологическом пространстве - коттеджном посёлке Резиденция Холмогоровка, созданном специально для тех, кто ценит природу, тишину и комфорт частного дома, вдали от городской суеты, но при этом желает иметь доступ ко всей необходимой инфраструктуре современного города
Резиденция Холмогоровка – это не просто поселок, это философия жизни. Здесь царит атмосфера спокойствия и гармонии, позволяющая отдохнуть от суеты большого города и насладиться тишиной и свежим воздухом. Инфраструктура поселка включает в себя все необходимое для комфортного проживания: благоустроенные дороги, современные коммуникации, охраняемая территория, детские и спортивные площадки.
Дом построен с учётом современных трендов из экологически чистых материалов высшего качества. Фундамент толщиной 35 см, обеспечивает надёжность конструкции, а стены из качественного красного керамического блока , утепленный фасад, НPL- панели, сохраняют тепло зимой и прохладу летом. Продуманная планировка с просторной кухней-гостиной 39,58 кв.м., две спальни 10,24 и 18,76 кв.м совмещенный санузел и гардеробная, панорамные окна, наполняющие пространство светом, – все это создает атмосферу уюта и комфорта.
Террасное пространство 40,41 кв.м. облицовано долговечным клеёным брусом, способствующим созданию приятного микроклимата внутри помещения круглый год. Окна оснащены трёхкамерными стеклопакетами, обеспечивающие отличную звукоизоляцию и сохранение тепла.
Террасное пространство под кровлей облицовано долговечным клеёным брусом, способствующим созданию приятного микроклимата внутри помещения круглый год. Окна оснащены трёхкамерными стеклопакетами, обеспечивающие отличную звукоизоляцию и сохранение тепла.
Внутренняя отделка дома выполнена в сером ключе, что позволит Вам воплотить в жизнь свои дизайнерские предпочтения. Выполнена типовая разводка электричества, разводка сантехники, выводы под радиаторы, установлена система тёплого пола, электрический котёл и бойлер. Подключены все коммуникации: электроснабжение 15 кВт, водоснабжение, локальные очистные сооружения, водоотведение. Газ на границе участка. Забор по периметру участка, вымощенное плиткой парковочное место
Земельный участок в собственности. Категория земли – ИЖС.
На территории поселка планируются живописные парки, прогулочные аллеи, уютные уголки отдыха возле прудов, теннисный корт и спортивная площадка для баскетбола. Вы сможете наслаждаться чистым воздухом и гармонией природы прямо за порогом своего дома. Вы сможете пользоваться всеми преимуществами благоустроенной инфраструктуры. Собственная школа на 1 150 мест. Детский сад на 350 малышей, физкультурно-оздоровительный комплекс для занятий спортом и поддержания здоровья.
Торговый центр для повседневных покупок. Вам больше не придётся беспокоиться о ежедневных поездках и пробках, ведь необходимая инфраструктура находится буквально на расстоянии вытянутой руки.
Комфортное проживание обеспечивает профессиональная управляющая компания. Безопасность обеспечивает частное охранное предприятие, предусматривается система видео наблюдения. Территория огорожена. Освещение дорог и тротуаров. Кроме того, территория обеспечивается собственной управляющей компанией и системой круглосуточной охраны, гарантирующей безопасность и порядок в любое время суток.
Поселок расположен :
15 минут до Балтийского моря
5 минут до г. Калининграда
15 минут до аэропорта Храброво
Не упустите возможность приобрести этот уникальный дом и создать свой собственный уголок рая. Выбирайте жизнь в гармонии с собой и окружающей средой. Выбирайте Резиденцию Холмогоровка. Место, где соединяются мечты о комфорте, экологии и удобстве современной жизни
Свяжитесь с нами прямо сейчас, чтобы узнать больше о нем и договориться о просмотре. Ваша мечта о жизни в гармонии с природой ждет вас в Резиденции Холмогоровка.
Арт. 129271773

Характеристики


Площадь дома: 96.8 кв.м.
Жилая площадь: 59.43 кв.м.
Площадь участка: 5.47 сотка
Тип участка: ИЖС
Количество этажей: 1
Отопление:
Канализация:
Электричество:
Водопровод:

Комарова Виолетта

+79965228169

Похожие объекты

9 740 000

Дом в эко-поселке
Южная ул.

Холмогоровка
8 990 000

Дом в эко-поселке
Южная ул.

Холмогоровка
8 660 000

Дом в эко-поселке
Южная ул.

Холмогоровка