Участок 33.3 сот. СНТ

2 700 000

Калининградская область, Зеленоградский район, Романово п., Романово

Земельный участок, продажа, номер объекта в нашей базе: 126358327

Описание

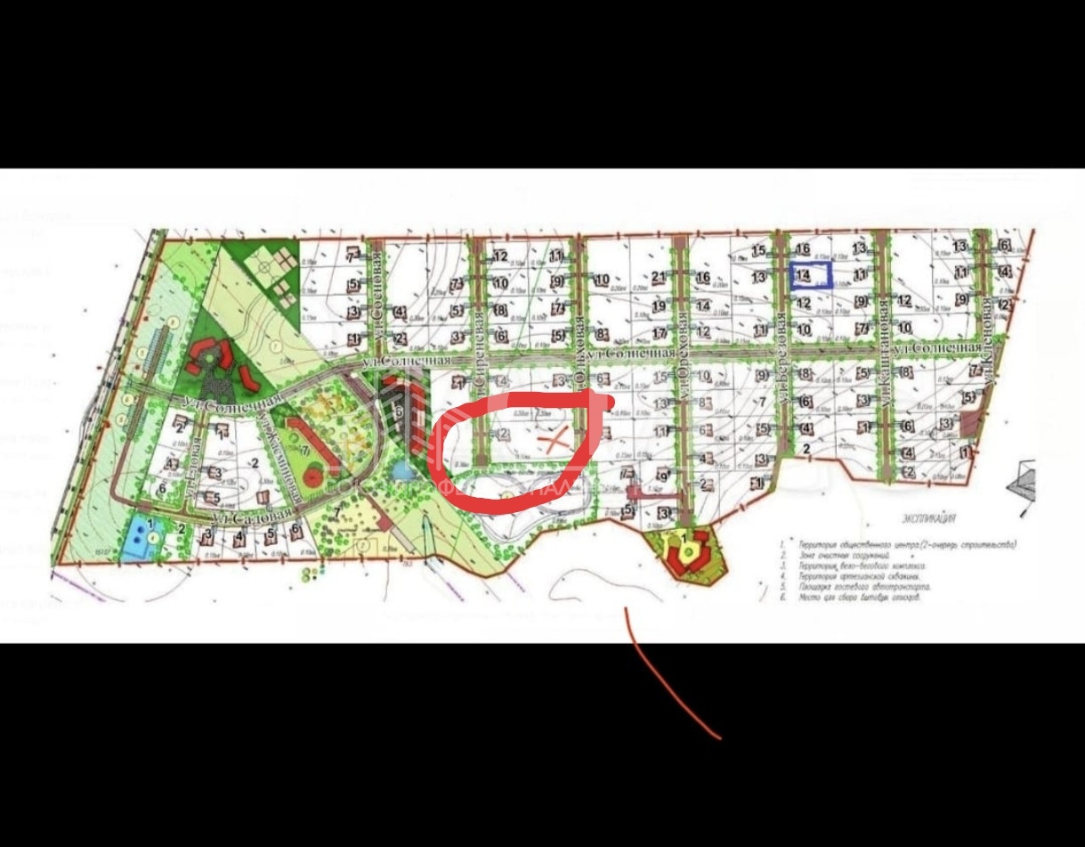
Продам участок 33.3 сотки в СПЖСК Солнечный дом.
Между курортным городом Пионерский и п. Романово Зеленоградского района.
До г.Пионерский 5 км., до п.Романово 2 км.
У въезда в поселок остановка общественного транспорта. От трассы по центральной улице отсыпана дорога.
Поселок активно застраивается жилыми домами.
Есть электричество. В перспективе газоснабжение поселка, газ проходит по границе поселка.
При желании есть техническая возможность размежевать участок на 2 полноценных участка!
Приобретая данный участок вы инвестируете не только в землю, но и в возможность создать дом своей мечты в окружении природы и экологически чистой среды обитания! Здесь природа встречается с комфортом современной жизни! Здесь вдали от городской суеты, вы найдете свой идеальный уголок спокойствия и умиротворения, в 5 км от Балтийского моря!
Ваш идеальный участок ждет именно Вас!
Арт. 126358327

Характеристики


Площадь: 33.3 сотка
Торг:

Кравченко Светлана

+79097757392