Дом на Побережье

25 000 000

Полевая ул., 12Г, Зеленоградск

Дом, продажа, номер объекта в нашей базе: 108722870

Описание

Отличное расположение - Западный пляж расположен на удаленности 500 м от дома.
До Калининграда - 20 минут. Хорошие подъездные пути и транспортное сообщение.
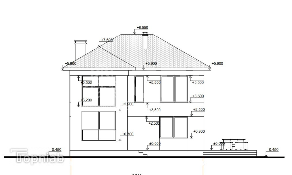
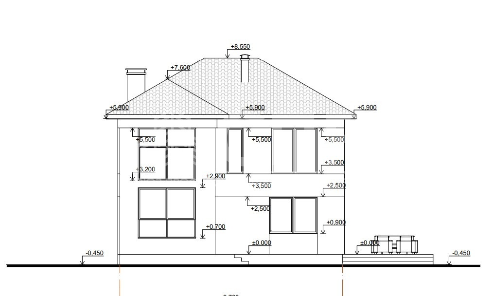
Этот дом достоен вашего внимания. Cовpeмeннaя apxитектуpа, доpогостоящие качественные oтделoчныe материaлы, алюминиевые двухкамерные cтеклoпaкеты, высокие потолки, теплый пол.
Дом 120 м2 двухэтажный. Материал постройки - газосиликатный блок, жб перекрытия, лестница монолит.
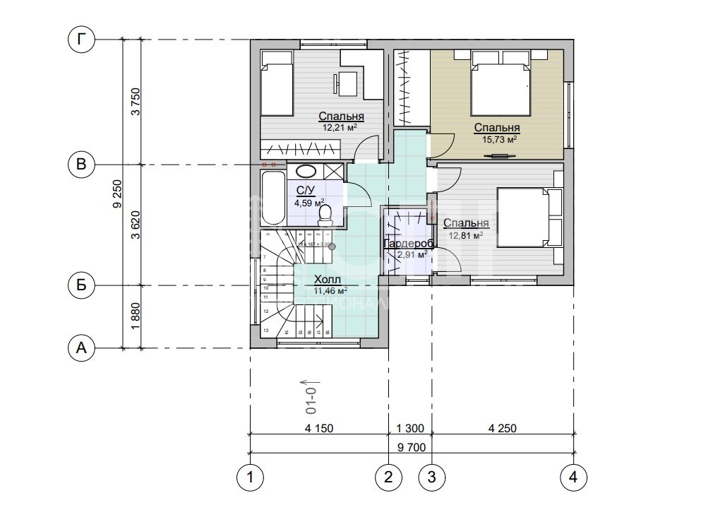
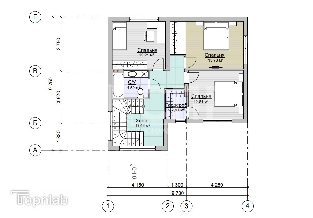
Комфортная продуманная до мелочей планировка (на фото).
Просторная кухня - гостиная с выходом на придомовую территорию, два санузла, гардероб, хозяйственная комната.
Дом внутри готов к отделке, сделана разводка электричества, отопления и канализации. Все коммуникации подключены: газ (автономное отопление - подключен котел), вода и канализация - центральные, свет - 15 кВт, интернет - оптоволокно.
Благоустроенный участок ИЖС площадью 6 соток в собственности.
Капитальный фронтальный алюминиевый забор, откатные ворота.
Парковочная зона, дорожки, отмостка и выход на террасу вымощены тротуарной плиткой.
Дом поставлен на кадастровый учёт, участок в собственности. Присвоен почтовый адрес, прописка.
Дом расположен в экологически чистом районе коттеджной постройки Малиновка, в дали от городской суеты и шума. Вокруг достойное окружение.

Осуществите свою мечту - купите дом у моря!!!
Арт. 108722870

Характеристики


Площадь дома: 136.5 кв.м.
Жилая площадь: 80 кв.м.
Площадь участка: 6 сотка
Тип участка: ИЖС
Количество этажей: 2
Отопление:
Канализация:
Электричество:
Газ:
Водопровод:
Торг:

Маркова Татьяна

+79114800441

Похожие объекты

13 499 999

Дом продажа
Калининградская область, Зеленоградский район, Зеленоградск г.

Зеленоградск
34 700 000

Дом на Побережье
Полевая ул., 12Б

Зеленоградск
31 500 000

Дом продажа
Калиновая ул., 1, литера Б

Зеленоградск