Квартира на море!
Рябиновая ул., 15, Светлогорск
Квартира, продажа, номер объекта в нашей базе: 128331433
Описание
В продаже уютная 1-комнатная квартира с дизайнерским ремонтом в 10 минутах ходьбы от моря!
Новый дом из красного керамического блока, 2022 года постройки.
Расположен на кромке соснового леса с прекрасными прогулочными тропинками.
До моря 800 метров.
В квартире выполнен свежий дизайнерский ремонт. Мебель и техника остаются новым владельцам.
Отличная природная локация. Удобная городская инфраструктура.
До исторического центра города - 20 минут неспешной ходьбы, до ж/д станции Светлогорск-2 - 10 минут ходьбы. В соседнем доме расположен маркет Кант и кафе Бонжорно. Сбербанк, МФЦ, СПА-комплексы Баден Баден и Кристал, медцентр Волна, бассейн и аптеки - все в удобной пешей доступности.
Один взрослый собственник. Быстрый выход на сделку.
Арт. 128331433
Характеристики
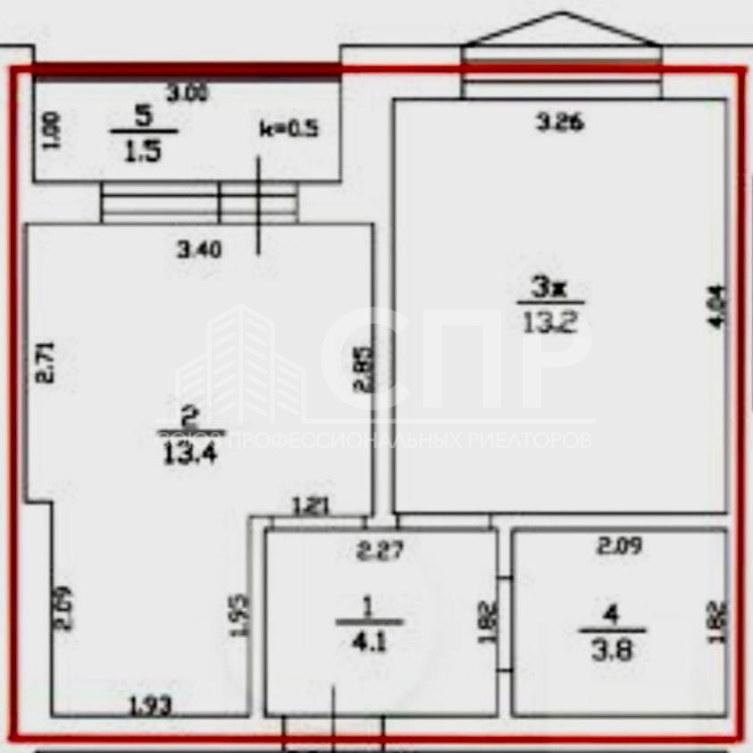
Площадь квартиры: 36 кв.м.
Количество комнат: 1
Жилая площадь: 13.2 кв.м.
Площадь кухни: 13.4 кв.м.
Этаж квартиры: 5
Этажность дома: 5
Тип санузла: совмещенный
Наличие мебели:
Ипотека:
Год сдачи: 2022
