Квартира продажа

13 298 180

Обогатительная ул., 2, Янтарный

Квартира, продажа, номер объекта в нашей базе: 126101708

Описание

Продаётся светлая 1-комнатная квартира на берегу Балтийского моря в ЖК «Морис», Янтарный.



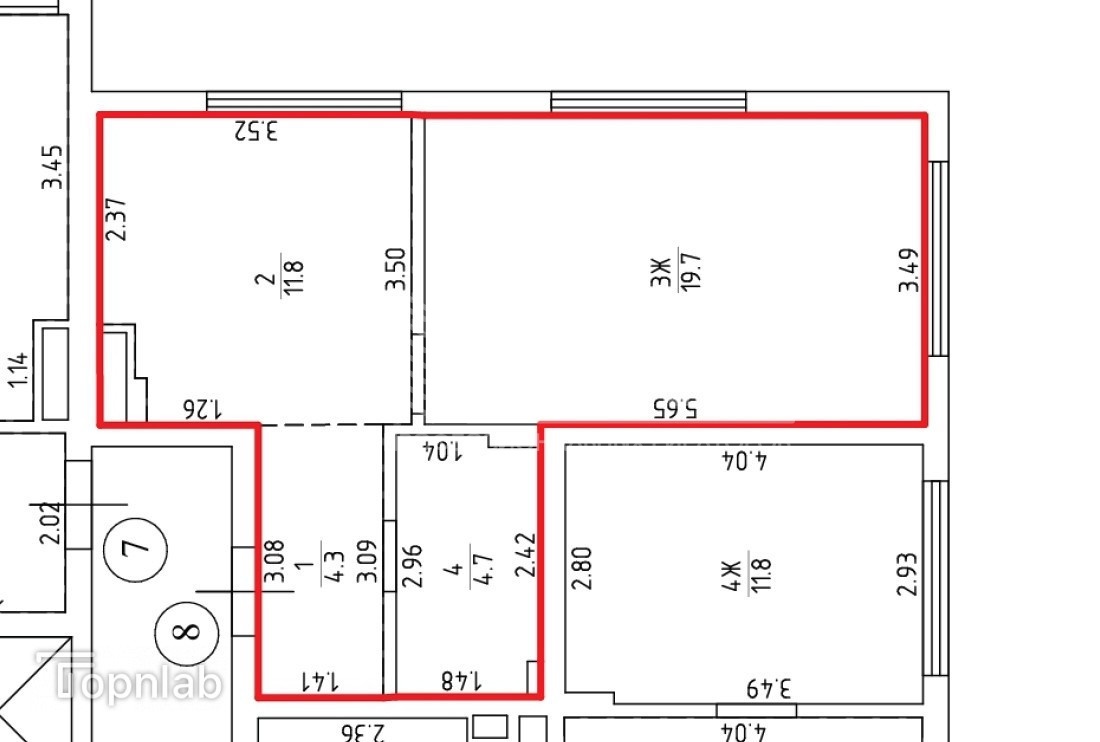
Общая площадь: 40,42 м?
Этаж: 2
Отделка: предчистовая
ЖК: «Морис»



Премиум-локация! Продается уютная однокомнатная квартира в современном жилом комплексе «Морис», который расположен в пяти минутах от Балтийского моря.



О квартире:
Общая площадь 40,42 кв.м. — просторно и комфортно.
Второй этаж. Квартиры с такой же планировкой и метражом также доступны для покупки на 1 и 3 этажах этого дома. Предчистовая отделка.
Большие панорамные окна наполняют пространство светом и открывают потрясающий вид на живописные пейзажи округи.
Теплые полы на кухне, коридоре и санузле.
Автономное газовое отопление: итальянские
котлы Immergas.



О ЖК «Морис»:
Архитектура в стиле модерн: лаконичные формы, отсутствие лишних деталей.
Расположение на возвышенности — это гарантия великолепных видов и лучших панорам моря.
В шаге от широких песчаных пляжей Янтарного.
Наслаждайтесь морскими пейзажами и максимальным естественным освещением каждый день.



Главные преимущества жизни в ЖК «Морис»:
Безопасность на первом месте: система контроля доступа с умными воротами и домофоном с функцией Face-ID.
Панорамная открытая терраса общего пользования в уровне антресольного этаж.



Почему это ваш идеальный вариант?
Инвестиция в себя: жизнь у моря — это чистый воздух, гармония и ежедневный отдых.
Свобода творчества: предчистовая отделка позволяет вам спланировать и создать идеальное жилое пространство.
Уникальный вид: панорама на Балтийское море из ваших окон станет главной достопримечательностью вашего дома.



Для этого объекта действует — «сельская ипотека» со ставкой от 3% годовых.



Идеально для жизни на берегу моря, для инвестиций или как отпускная квартира!



*Оперативный показ в любое время - готова организовать просмотр в удобное для вас время.
*Полное сопровождение сделки от первого просмотра до получения ключей.
*Также есть возможность получить дополнительные фото и видео материалы по запросу.
Арт. 126101708

Характеристики


Площадь квартиры: 40.42 кв.м.
Количество комнат: 1
Жилая площадь: 19.68 кв.м.
Площадь кухни: 11.86 кв.м.
Этаж квартиры: 2
Этажность дома: 4
Тип санузла: раздельный
Ипотека:

Главацкая Дарья

+79853859038

Похожие объекты

11 250 000

Квартира у моря
Советская ул., 26

Янтарный
21 612 000

Квартира продажа
Обогатительная ул., 2

Янтарный
15 483 300

Квартира продажа
Обогатительная ул., 2

Янтарный